COM

COM
COM(씨오엠)은 2015년 김세중과 한주원이 결성하고 2021년 임지원이 합류해 운영 중인 공간 디자인 스튜디오입니다. 불특정 다수를 대상으로 하는 상업 공간부터 여러 구성원이 함께 일하는 오피스까지 다양한 성격의 공간과 가구를 디자인하고 있습니다. 현재는 김예지, 한채현, 조윤제, 조영연, 박혜빈, 안재우, 김홍구가 함께하고 있습니다.

대표 작업으로 제네시스 HQ 오피스(2024), JKND 사옥(2024), 피자 슬라이스 서울(2025), HYBE 사옥(2021), 무신사 스튜디오 신당(2023), TUNE(2023), 맹그로브 동대문(2022), JTBC PLAY(2020), 아모레 성수(2019), thisisneverthat(2019~현재) 등이 있습니다. 또한 단독전 《City Cortania》(2017), 《The Last Resort》(2021), 《소품 불러오기》(2024)와 단체전 《New Wave Ⅱ: 디자인, 공공에 대한 생각》(2018), 《타이포잔치》(2021), 《젊은 모색 2023, 국립현대미술관 과천》(2023) 등 다수의 전시에 참여하며 활발히 활동하고 있습니다.

COM is a design studio based in Seoul that established in 2015 by Sejoong Kim who majored in spatial design, Joowon Han who majored in stage art.
COM designs spaces and furniture with various characteristics, from commercial spaces for unspecified individuals to offices where different members work together.

COM is pronounced “C-O-M”

Contact
ask.studioCOM@gmail.com

Instagram
@c_o_m.kr

Address
서울시 용산구 장문로 14 우성빌딩 3층

3F, 14, Jangmun-ro, Yongsan-gu,
Seoul, Republic of Korea

Current team
김세중 | Kim Sejoong
한주원 | Han Joowon
임지원 | Lim Jiwon
김예지 | Kim Yeji
한채현 | Han Chaehyun
조윤제 | Cho Yunjei
조영연 | Jo Youngyeon
박혜빈 | Park Hyevin
안재우 | Ahn Jaewoo
김홍구 | Kim Honggoo

Copyright
All the contents displayed on this website are COM’s intellectual and commercial property and should not be used, published or copied without studio’s permission.

Types
All
Accommodation
Bars
Cafe
Exhibition
Furnitures
Restaurant
Lounge
Office
Private residence
Scenography
Stores
Showrooms
    2025
    thisisneverthat® In-mall Store
    2024
    JKND HQ Office Seongsu
    thisisneverthat® In-mall Store
    2023
    TUNE
    thisisneverthat® In-mall Store
    2022
    MANGROVE Dongdaemun
    thisisneverthat® In-mall Store
    2021
    thisisneverthat® In-mall Store
    HYBE
    2020
    2019
    Amore Seongsu
    2018
    2017
    2016
    2015
    2014
    28
    GENESIS HQ Office, 2024
    Client :
    Hyundai Motor Company
    Site :
    Gangnam-gu, Seoul
    Types :
    Office
    Topics :
    Rooms Within A Rooms, And Space Inbetweens
    Work Scope :
    Layout, Interior, Furniture, Lighting
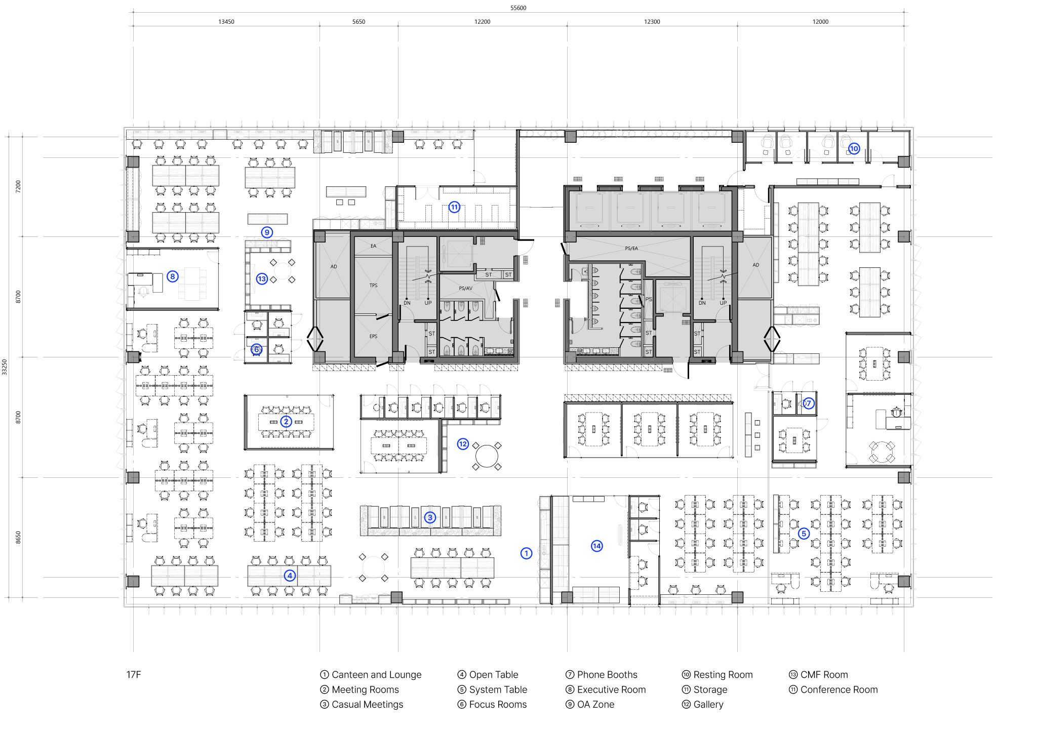
    Area :
    910㎡ (16F), 1600㎡ (17F)
    Period :
    Design 2023. 09~12 | Construction 2024. 01~03
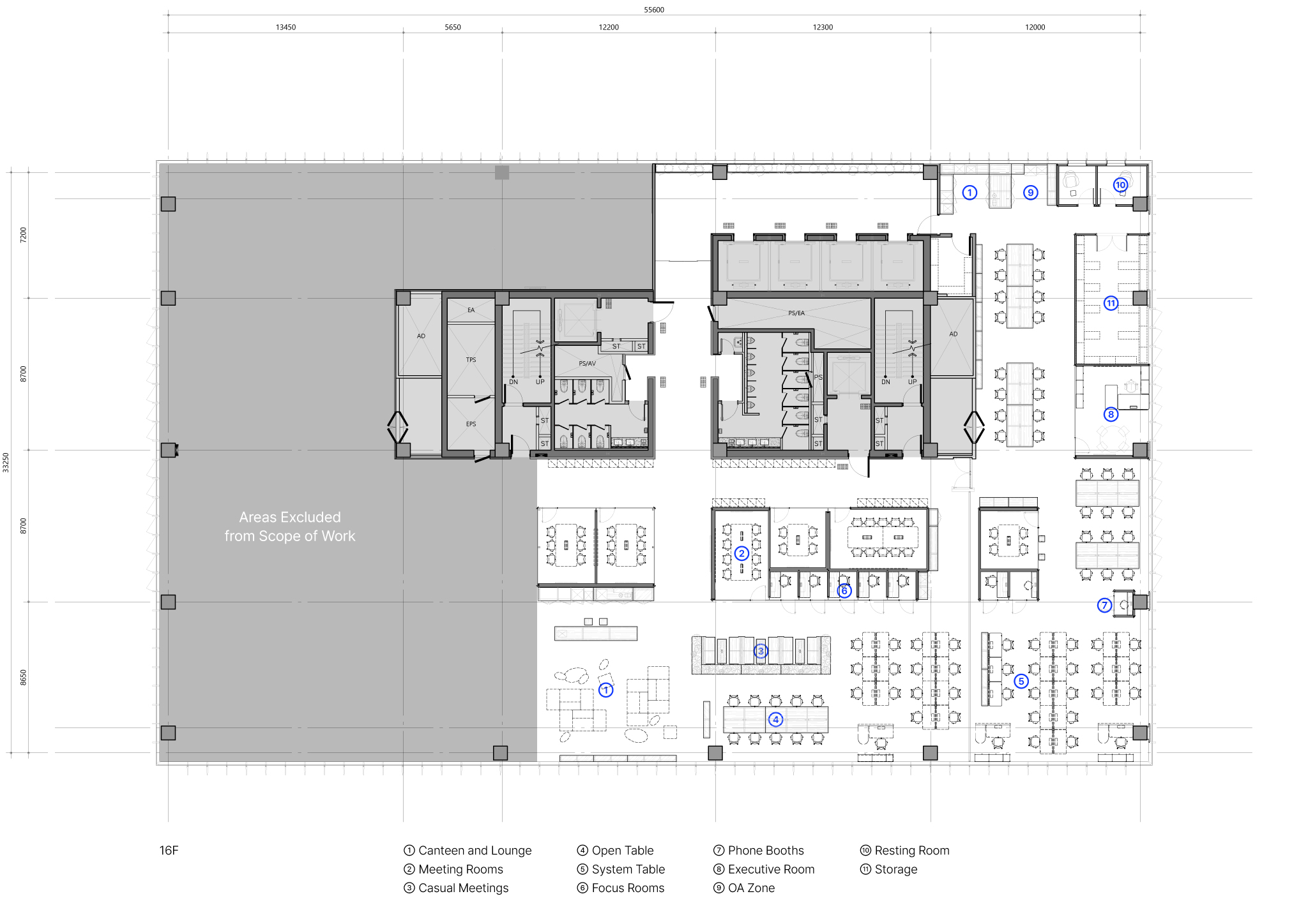
    GENESIS HQ OFFICE

    일반적인 오피스 레이아웃은 건물의 코어 주변으로 각종 실들이 모여있고, 창을 따라 데스크가 놓이는 형태를 띕니다. 이것은 면적활용면에서 효율적일지 몰라도, 회사가 지향하는 바와는 전혀 관련이 없는 모습일 것입니다. 제네시스 오피스 프로젝트는 이러한 전형적 구성에서 벗어나 실과 실 사이를 띄우고, 그 틈에 OA, 라이브러리, 캔틴 등 사용자가 필요로 할 만한 것들을 배치했습니다. 이 틈들은 일종의 길이 되어 사람들이 마주치고, 대화하거나 잠시 쉴 수 있는 공간으로 활용 됩니다. 일종의 여지를 준 셈인데, 우리는 이것을 '열려 있는' 공간이라 부르기로 했습니다.

    비일상적인 색채나 조형미를 강조한 요소들로 공간이 채워진다면 이는 불필요한 시각적 강요를 만들어내고 사용자의 상상력을 제한하게 되므로, 오피스를 구성하는 요소들은 중립적이고 절제된 모습이어야 합니다. 이에 따라 제네시스 오피스에서는 형태, 색, 질감 등 모든 요소를 신중하게 조율하여 필요 이상의 조형적 개입이 없도록 경계했습니다. 이러한 접근은 사용자에게 특정 스타일이나 컨셉을 강요하지 않는 공간을 만들고, 여러 가능성에 열려있을 수 있는 바탕이 됩니다.

    불필요한 시각적 강요는 디자인적 낭비이기도 합니다. 이는 필요 이상으로 만들어진 모든 것들을 의미하기도 합니다. 우리가 가장 먼저 했던 일은 오피스가 기능적으로 작동하기 위해 반드시 남겨야 할 것들을 검토하고, 그렇지 않은 부분을 제거하는 작업이었습니다. 마지막까지 남아 있던 요소들은 회의실, 조명, 공조 등 공간의 기능에 필수적인 설비와 구조물뿐이었으며, 이 역시 본래의 기능만 남기고 나머지를 최소화했습니다.

    예를 들어, 천장의 역할이 조도 확보(조명)와 흡음이라면, 흡음이 필요하지 않은 공용 공간에는 별도의 천장을 설치하지 않고 노출된 펜던트만을 달아둡니다. 개별 실에만 천장을 설치하되, 공조 장치가 들어갈 공간을 제외한 나머지는 표준 자재 크기에 맞춰 일반적인 높이로 구성했습니다. 물론 천장이 더 높았다면 시각적으로 더 멋져 보였겠지만, 필요가 충족되는 지점에서 멈추는 것을 택했습니다. 이와 같은 접근이 쌓여 구성된 공간은 기존의 ‘인더스트리얼’이나 ‘미니멀’ 같은 카테고리로 단순히 규정할 수 없는 특성을 가지게 됩니다.

    나아가 이러한 물리적 요소를 넘어 우리가 궁극적으로 바랬던 것은 감각적 영역에서의 완성이었습니다. 하루 8시간 이상 이곳에 머무는 사람들이 공간에서 불편함이나 어려움을 느끼지 않았다는 점, 그리고 구성원의 가족들이 오피스를 방문하는 날이 생겼다는 이야기를 들으니, 다소 추상적으로 여겨졌던 열린 공간의 의미가 점차 구체적으로 실현되고 있다는 생각이 듭니다.

    제네시스 오피스 프로젝트는 현대 모터스 그룹의 혁신적 기업문화를 대표하며, 구성원들이 창의적으로 협업하고 영감을 나눌 수 있는 공간을 구축하기 위해 설계되었습니다. 이 프로젝트는 평이한 오피스의 한계를 뛰어넘어, 개방적이면서도 유연한 공간을 통해 사용자가 자발적으로 교류하고 휴식할 수 있는 환경을 조성하는 것을 목표로 하였습니다. 이러한 디자인 접근은 사용자에게 더 나은 경험을 제공하며, 제네시스 브랜드의 가치와 정체성을 반영해 브랜드와 일체감을 형성하는 동시에 효율적이고 유연한 업무 환경을 창출하였습니다.

    23. 08. 24 첫 현장 답사
    More

    (EN)
    Credit
    Photo : Son Mihyun (MH Photography)
    Construction : DOOYANG
    CD : Dawon&Company
    Structural Design : JW Structure Engineering
    Illumination Review : Huel Design
    Landscape : Botanical Studio SAM
    DD Assist : sowayo architects

    GENESIS Brand Space Team
    Kim Jihee
    Lee Jeonghyun

    COM
    Han Joowon, Cho Yunjei
    Kim Sejoong, Lim Jiwon

    (KR)
    Credit
    Photo : 손미현
    Construction : 두양건축
    실시 설계 : 다원&컴퍼니
    구조 설계 : 제이더블유구조안전기술사사무소
    조도 검토 : 휴엘 디자인
    Landscape : 보타니컬 스튜디오 삼
    DD Assist : 소와요 건축사 사무소

    GENESIS Brand Space Team
    김지희, 이정현

    COM
    한주원, 조윤제
    김세중, 임지원