COM

COM
COM(씨오엠)은 2015년 김세중과 한주원이 결성하고 2021년 임지원이 합류해 운영 중인 공간 디자인 스튜디오입니다. 불특정 다수를 대상으로 하는 상업 공간부터 여러 구성원이 함께 일하는 오피스까지 다양한 성격의 공간과 가구를 디자인하고 있습니다. 현재는 김예지, 한채현, 조윤제, 조영연, 박혜빈, 안재우, 김홍구가 함께하고 있습니다.

대표 작업으로 제네시스 HQ 오피스(2024), JKND 사옥(2024), 피자 슬라이스 서울(2025), HYBE 사옥(2021), 무신사 스튜디오 신당(2023), TUNE(2023), 맹그로브 동대문(2022), JTBC PLAY(2020), 아모레 성수(2019), thisisneverthat(2019~현재) 등이 있습니다. 또한 단독전 《City Cortania》(2017), 《The Last Resort》(2021), 《소품 불러오기》(2024)와 단체전 《New Wave Ⅱ: 디자인, 공공에 대한 생각》(2018), 《타이포잔치》(2021), 《젊은 모색 2023, 국립현대미술관 과천》(2023) 등 다수의 전시에 참여하며 활발히 활동하고 있습니다.

COM is a design studio based in Seoul that established in 2015 by Sejoong Kim who majored in spatial design, Joowon Han who majored in stage art.
COM designs spaces and furniture with various characteristics, from commercial spaces for unspecified individuals to offices where different members work together.

COM is pronounced “C-O-M”

Contact
ask.studioCOM@gmail.com

Instagram
@c_o_m.kr

Address
서울시 용산구 장문로 14 우성빌딩 3층

3F, 14, Jangmun-ro, Yongsan-gu,
Seoul, Republic of Korea

Current team
김세중 | Kim Sejoong
한주원 | Han Joowon
임지원 | Lim Jiwon
김예지 | Kim Yeji
한채현 | Han Chaehyun
조윤제 | Cho Yunjei
조영연 | Jo Youngyeon
박혜빈 | Park Hyevin
안재우 | Ahn Jaewoo
김홍구 | Kim Honggoo

Copyright
All the contents displayed on this website are COM’s intellectual and commercial property and should not be used, published or copied without studio’s permission.

Types
All
Accommodation
Bars
Cafe
Exhibition
Furnitures
Restaurant
Lounge
Office
Private residence
Scenography
Stores
Showrooms
    2026
    MUSINSA Megastore Seongsu
    2025
    thisisneverthat® In-mall Store
    2024
    JKND HQ Office Seongsu
    thisisneverthat® In-mall Store
    2023
    TUNE
    thisisneverthat® In-mall Store
    2022
    MANGROVE Dongdaemun
    thisisneverthat® In-mall Store
    2021
    thisisneverthat® In-mall Store
    HYBE
    2020
    2019
    Amore Seongsu
    2018
    2017
    2016
    2015
    2014
    28
    JKND HQ Office | 5F~9F, 2024
    Client
    : JKND
    Site
    : Seongsu-dong, Seoul
    Types
    : Office
    Topics
    : Clothing industry
    Period
    : Design 2022. 12 ~ 2024. 06 | Construction 2024. 01 ~ 07
    Work Scope
    : Interior, Furniture
    Area
    : 1678㎡ (5F~9F)
    JKND HQ 성수 사옥 | 오피스 5F ~ 9F

    디스이즈네버댓을 시작으로 다양한 패션 브랜드를 런칭, 전개 중인 패션 회사 JKND의 사옥 설계 프로젝트입니다. 건축 설계를 맡은 푸하하하프렌즈와 실내 공간과 가구 디자인을 맡은 COM 그리고 JKND는 수년간 긴밀하게 협의하여 섬세한 계획을 구축했습니다. (돌이켜보니 2019년 연희동 사옥 이후 5년만에 성수동으로 가게 되었네요)

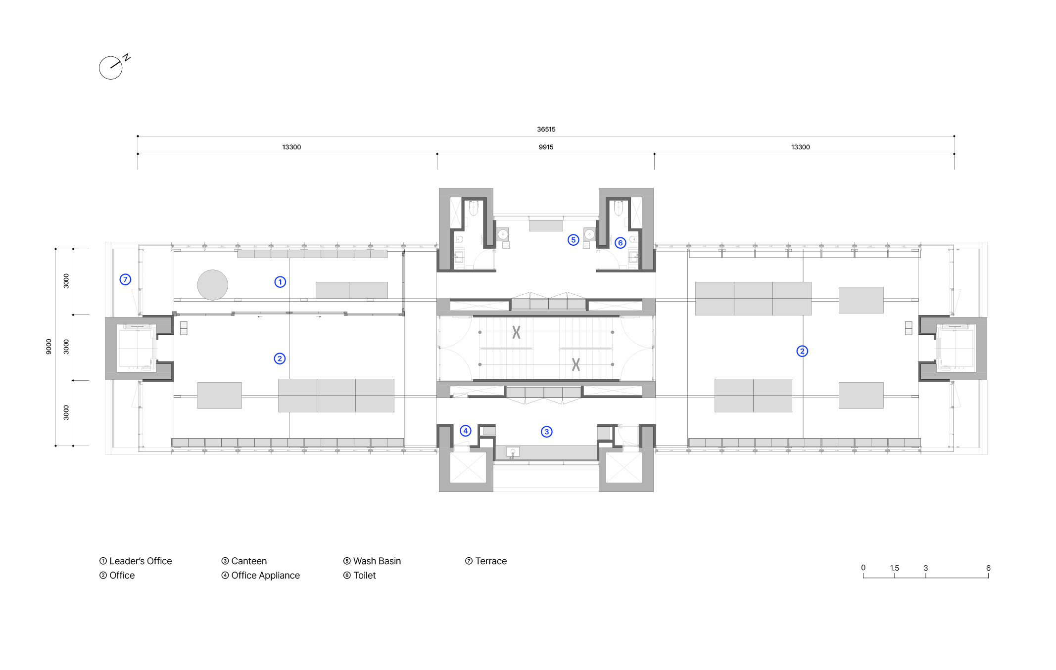
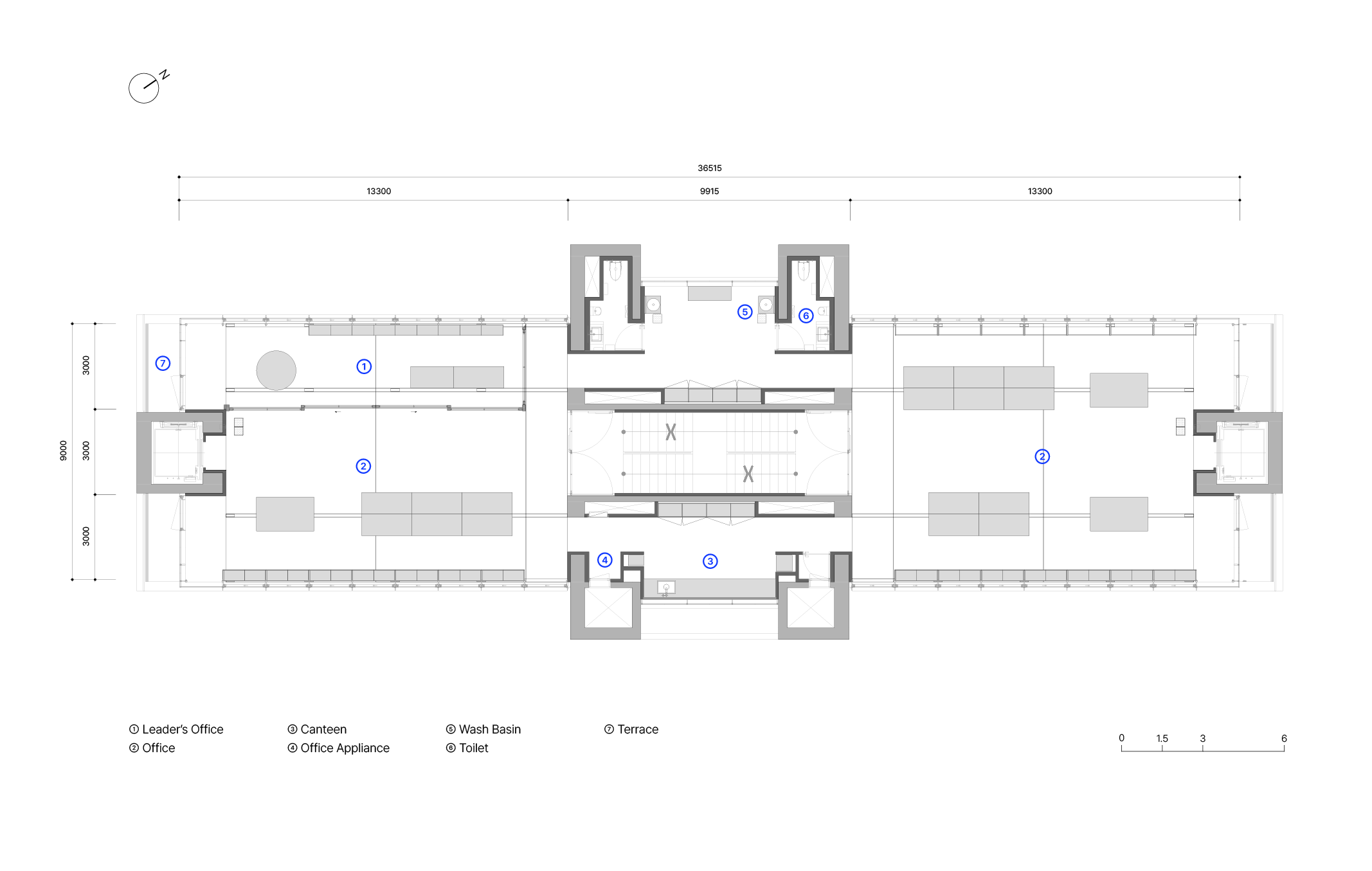
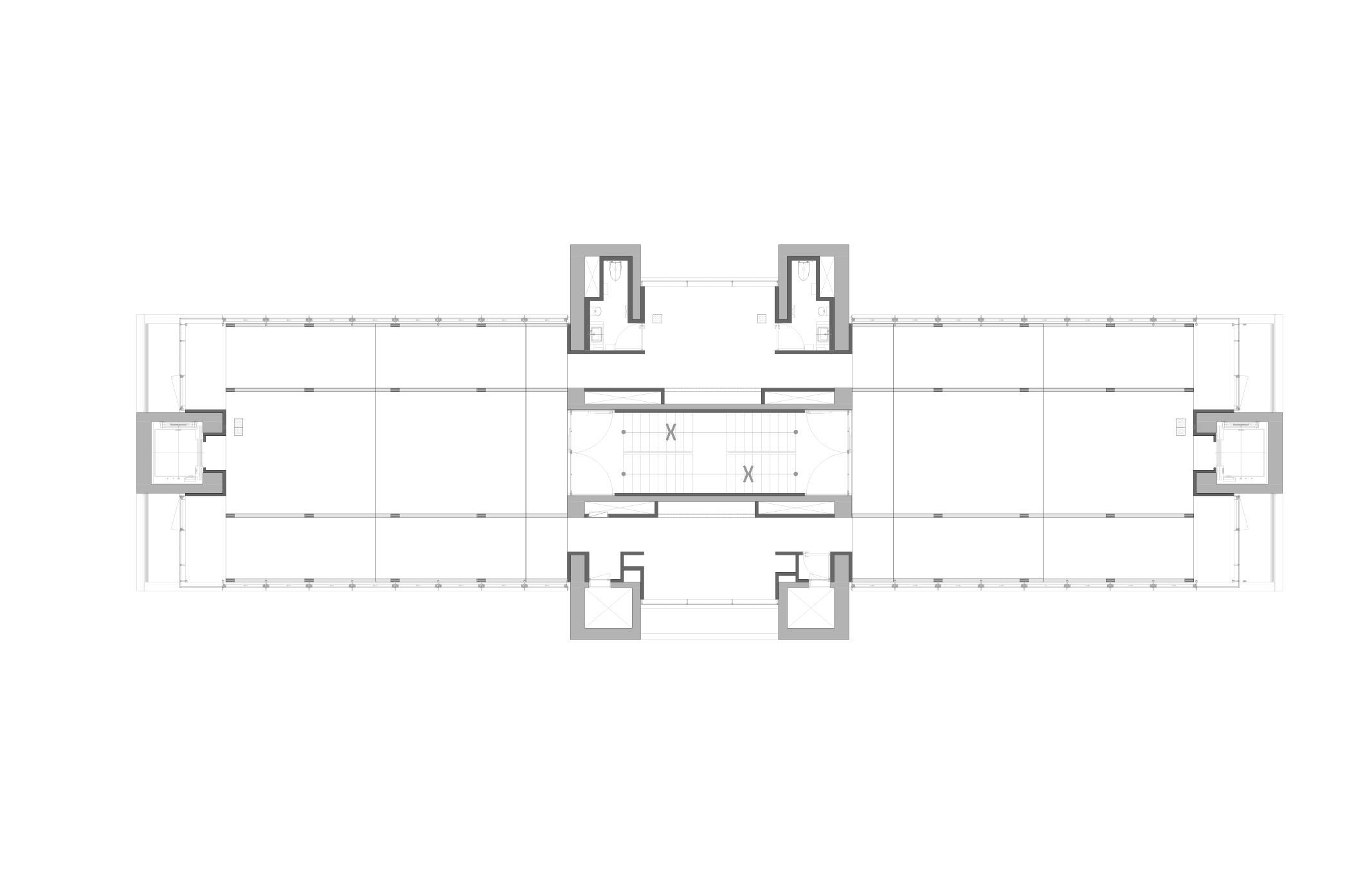
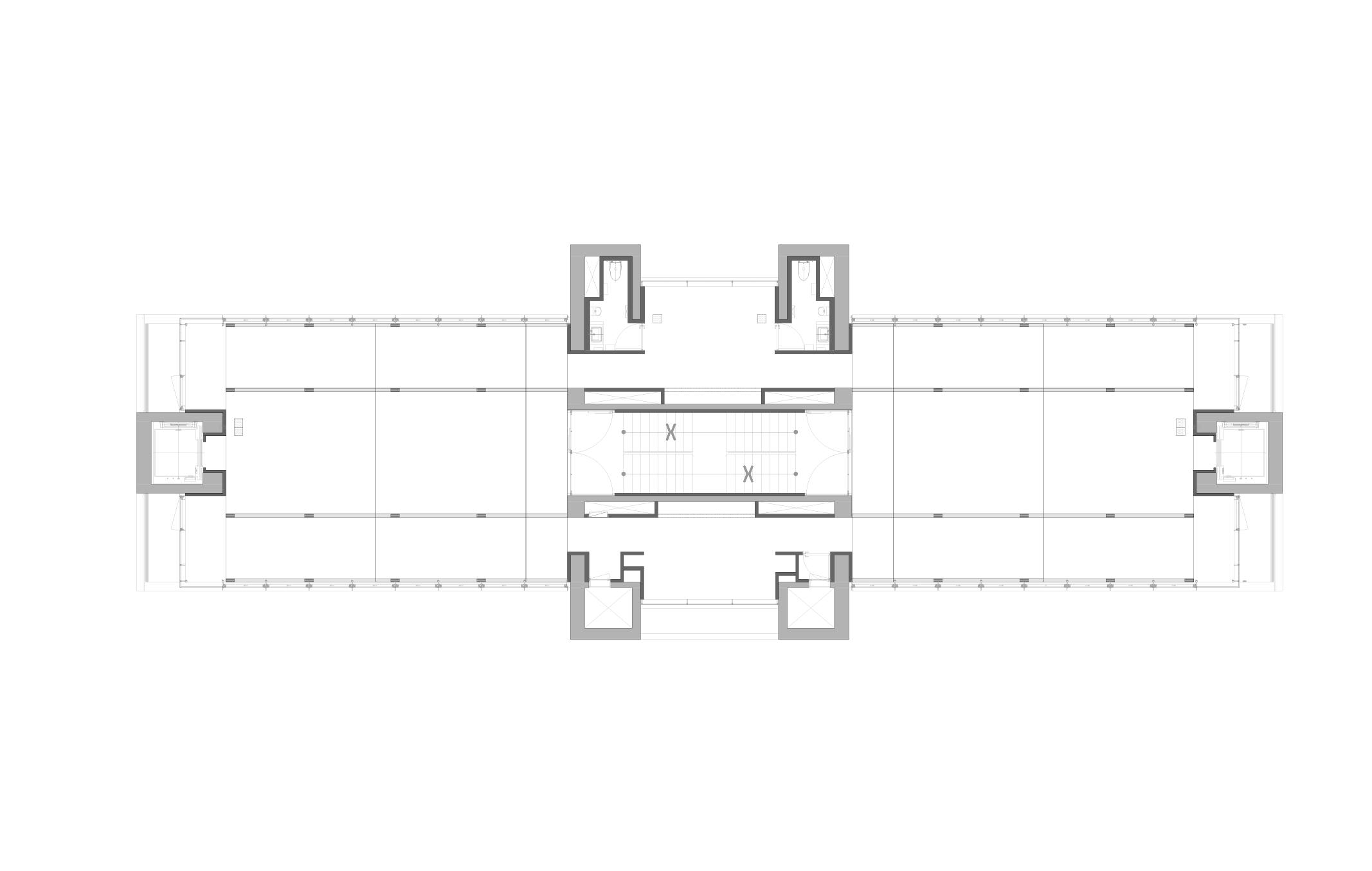
    사옥은 층별로 지하 2층 전시 및 팝업 공간, 지하 1층 F&B, 1층 로비, 2~3층 매장, 4~9층 오피스, 10층 포토 스튜디오와 라운지로 구성됩니다. 이 건물의 주요 특징 중 하나는 5~10층에 구현된 효율적인 층간 연결 시스템입니다. 건물 한가운데를 관통하며 양측 공간을 가르는 중앙 계단은 X자 형태로 구성되어 어느 방향에서든 수직 이동이 자유로운, 업무 공간의 핵심 동선입니다. 건물 양 끝단에 배치된 엘리베이터는 멀리 떨어진 층 간의 수직 동선을 추가 제공함으로써 업무 환경의 효율성을 극대화합니다. 한편, 이와 같은 중앙 계단과 엘리베이터 실을 이루는 구조는 건축물 전체를 지지하는 수직 구조로 설계되었으며, 이를 연결하는 육중한 넓이의 보가 건물 내부에 기둥이 없는 열린 업무 환경을 조성하고 있습니다. 이러한 건축의 주요한 특징들이 인테리어 설계의 중요한 출발점이 되었습니다.

    ↑ 층별 가이드

    창립 이래 가파른 성장을 보이며 직원 수도 매년 늘고 있는 JKND의 오피스 레이아웃은 폐쇄적이고 경직적인 기존 오피스 구성과는 달라야 합니다. 인원의 충원과 이동이 원활하게 이뤄지려면 가구 배치를 자유롭게 바꿀 수 있는 공간이어야 한다는 판단으로, 어느 위치에서든 전열과 통신을 끌어 쓸 수 있는 플로어 트렌치를 고안했습니다. 또한, 공간을 구획하는 벽체를 배치하지 않음으로써 건축적 특징인 사방으로 넓게 트인 창호의 개방감을 유지했습니다.

    ↑ 플로어 전열 트렌치
    ↑ 캔틴과 간이세면대

    사옥의 눈에 띄는 건축적 특징은 샤프트의 수직 구조와 넓은 보로만 건물을 지지하는, 기둥이 없는 구조라는 점입니다. 보편적이지 않은 형태의 육중하고 넓은 보를 석고 천장으로 막기엔 아쉬웠기에 천장의 건축 마감을 그대로 이용하면서 기능을 위한 최소한의 구조물을 설치하고자 했습니다. 보 하단의 스프링클러를 따라 전기 배선과 소방용 배관을 정리하고 조명을 매달 수 있는 트레이를 제작했습니다.

    ↑ 천장 트레이와 플로어 트렌치

    사옥의 다양한 환경에 설치될 조명이 필요했습니다. 천장 트레이 하단, 보와 보 사이 움푹 파인 슬라브 하단, 배관을 해치고 틈 사이로 나와야 하는 구간, 계단실 중간 참 벽면 등등.
    위치별로 조명이 모두 다른 모습을 하기보다는 각 구역을 하나로 묶어주는 통일된 형태였으면 했기에, 광원부의 형태는 유지한 채 설치 구조 부분에만 변화를 줬습니다. 또한, 직접적으로 광원이 드러나 업무 중 눈부심을 유발하지 않도록 반투명 유리갓을 제작해 일괄적으로 씌웠습니다. 유리갓은 금형을 떠서 주물 방식으로 제작했습니다.

    ↑ 다양한 설치 환경에 따라 변화하는 조명의 형태

    패션 브랜드 회사의 사옥이기에 의류, 악세사리, 잡지 등 다양한 형태의 물건을 수납하는 공간이 필요했습니다. 10년이 넘는 시간 동안 축적된 물건의 양이 상당했는데, 수납에만 집중해 별도의 실을 만들거나 높다란 장을 만들면 필연적으로 창호를 가릴 수밖에 없는 상황이었습니다. 그렇다고 수납 공간을 중앙부에 두면 엘리베이터와 중앙 계단 사이 주된 동선을 크게 방해하겠죠. 수납을 해결하기 위한 최우선 미션이 아래 세 가지로 정리됐습니다.

    ① 수납 시스템은 창호 측에 배치하되, 투과성이 확보되어야 한다
    ② 다양한 형태의 물건을 보관할 수 있어야 한다
    ③ 차양 계획을 고려해야 한다

    그리하여, 창호 라인을 따라 일률적으로 설치된 수직 구조물을 기준으로 창호 한 폭 1,500mm 길이에 맞춰 상단은 행거 겸 선반 모듈로, 하단부에는 (부서별 선호 보관 방식에 따라) 이동식 행거 혹은 수납장 혹은 책장이 들어가는 시스템을 고안했습니다.
    하나의 옷이 만들어지기까지 층별 다양한 부서의 협업이 이뤄집니다. 무엇보다 효율적이며 원활한 이동을 위해 가구 시스템의 모든 집기는 낮은 높이로 설계하고 캐스터를 부착했습니다. 수직 구조 최상단에는 구조와 창호 사이에 알루미늄 수평 블라인드를 설치했습니다. 1,500mm 간격의 블라인드와 블라인드 사이의 유격, 블라인드 조절용 손잡이를 수직 구조가 가려주어 정돈된 인상을 만듭니다.

    ↑ 창호측 수직구조와 가구 시스템
    ↑ 중앙 계단과 난간
    More

    (EN)
    Credit
    Photo : Texture on Texture
    Architecture Design : FHHH Friends
    CM : SAMWOO C.M.
    Architecture Construction : EAN R&C
    Interior Construction : GLROW Design
    CD : Choi Yunju
    Illumination Review : Huel Design

    JKND
    Director : Park Inwook
    PM : Choi Seho

    COM
    Kim Sejoong, Lim Jiwon
    Kim Yeaji, Han Joowon

    (KR)
    Credit
    Photo : 텍스쳐 온 텍스쳐
    건축 설계 : 푸하하하 프렌즈
    CM : 삼우 C.M.
    건축 시공 : 이안 R&C
    인테리어 시공 : 글로우 디자인
    CD : 최윤주
    조도 검토 : 휴엘 디자인

    JKND
    디렉터 : 박인욱
    PM : 최세호

    COM
    김세중, 임지원
    김예지, 한주원