COM

COM
COM(씨오엠)은 2015년 김세중과 한주원이 결성하고 2021년 임지원이 합류해 운영 중인 공간 디자인 스튜디오입니다. 불특정 다수를 대상으로 하는 상업 공간부터 여러 구성원이 함께 일하는 오피스까지 다양한 성격의 공간과 가구를 디자인하고 있습니다. 현재는 김예지, 한채현, 조윤제, 조영연, 박혜빈, 안재우, 김홍구가 함께하고 있습니다.

대표 작업으로 제네시스 HQ 오피스(2024), JKND 사옥(2024), 피자 슬라이스 서울(2025), HYBE 사옥(2021), 무신사 스튜디오 신당(2023), TUNE(2023), 맹그로브 동대문(2022), JTBC PLAY(2020), 아모레 성수(2019), thisisneverthat(2019~현재) 등이 있습니다. 또한 단독전 《City Cortania》(2017), 《The Last Resort》(2021), 《소품 불러오기》(2024)와 단체전 《New Wave Ⅱ: 디자인, 공공에 대한 생각》(2018), 《타이포잔치》(2021), 《젊은 모색 2023, 국립현대미술관 과천》(2023) 등 다수의 전시에 참여하며 활발히 활동하고 있습니다.

COM is a design studio based in Seoul that established in 2015 by Sejoong Kim who majored in spatial design, Joowon Han who majored in stage art.
COM designs spaces and furniture with various characteristics, from commercial spaces for unspecified individuals to offices where different members work together.

COM is pronounced “C-O-M”

Contact
ask.studioCOM@gmail.com

Instagram
@c_o_m.kr

Address
서울시 용산구 장문로 14 우성빌딩 3층

3F, 14, Jangmun-ro, Yongsan-gu,
Seoul, Republic of Korea

Current team
김세중 | Kim Sejoong
한주원 | Han Joowon
임지원 | Lim Jiwon
김예지 | Kim Yeji
한채현 | Han Chaehyun
조윤제 | Cho Yunjei
조영연 | Jo Youngyeon
박혜빈 | Park Hyevin
안재우 | Ahn Jaewoo
김홍구 | Kim Honggoo

Copyright
All the contents displayed on this website are COM’s intellectual and commercial property and should not be used, published or copied without studio’s permission.

Types
All
Accommodation
Bars
Cafe
Exhibition
Furnitures
Restaurant
Lounge
Office
Private residence
Scenography
Stores
Showrooms
    2025
    thisisneverthat® In-mall Store
    2024
    JKND HQ Office Seongsu
    thisisneverthat® In-mall Store
    2023
    TUNE
    thisisneverthat® In-mall Store
    2022
    MANGROVE Dongdaemun
    thisisneverthat® In-mall Store
    2021
    thisisneverthat® In-mall Store
    HYBE
    2020
    2019
    Amore Seongsu
    2018
    2017
    2016
    2015
    2014
    28
    Musinsa Studio Sindang, 2023
    Client :
    Musinsa
    Site :
    Jung-gu, Seoul
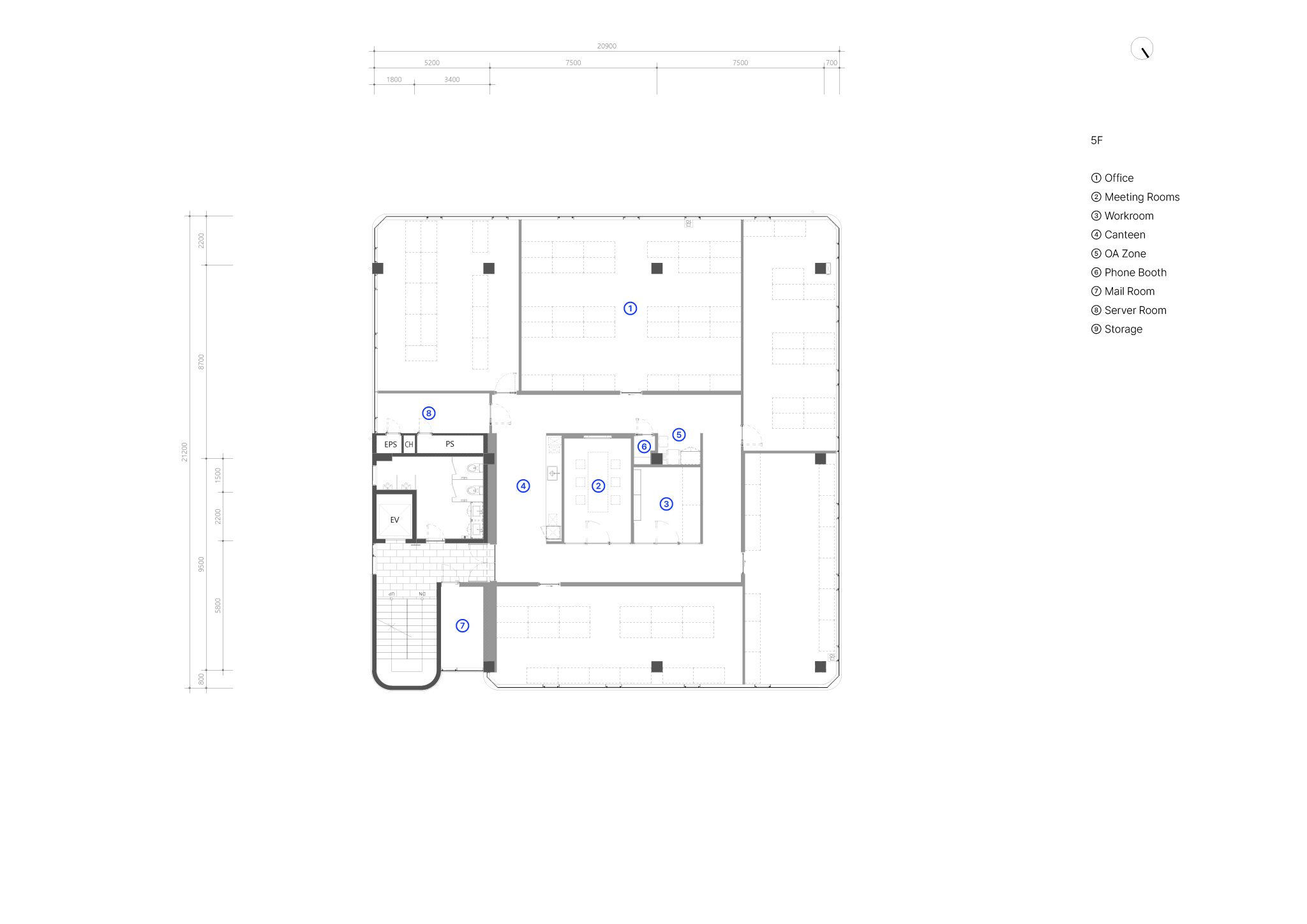
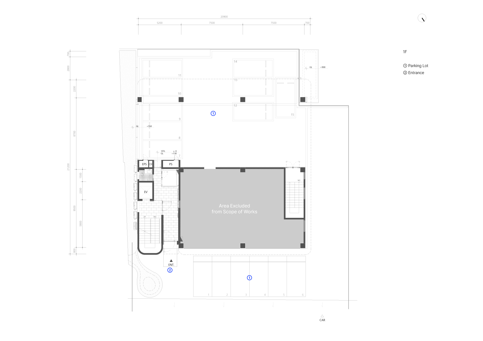
    Types :
    Office
    Topics :
    Share office, Lounge, Studio
    Work Scope :
    Interior, Exterior, Furniture, Fixtures
    Area :
    3300㎡ (B2 ~ 6F, Frontyard, Backyard)
    무신사 스튜디오 신당

    낡고 오래된 건물을 한정된 예산과 일정에 맞춰 리모델링하는 것을 목표로 착수했던 프로젝트.  처음 마주한 건물 내부는 폐허처럼 무너져 내린 천장과 그 사이로 보이는 골조가 인상적인 공간이었습니다. 간결하게 건물의 인상을 만들 방안을 찾고 있었는데, 경량 철골 자체를 디자인의 요소로 삼아 낮은 층고의 답답함을 해소하고 조명의 역할을 수행하도록 했습니다.

    ※ 건축: 소와요 건축사사무소, 인테리어: COM

    More

    (EN)
    Credit
    Photo : texture on texture, COM
    Construction : Kukbo Design
    Landscape : Botanical Studio Sam

    MUSINSA Space Design Team
    Nam Jihyun
    Jang Soyoung

    COM
    Han Joowon
    Kim Yeji
    Hong Yunhui

    sowayo architects
    Lee Jinhyuk
    Choi Yunju
    Kim Dohui

    (KR)
    Credit
    Photo : texture on texture, COM
    Construction : 국보 디자인
    Landscape : 보타니컬 스튜디오 삼

    무신사 공간디자인팀
    남지현, 장소영

    COM
    한주원, 김예지, 홍윤희

    sowayo architects
    이진혁, 최윤주, 김도희