COM

COM
COM(씨오엠)은 2015년 김세중과 한주원이 결성하고 2021년 임지원이 합류해 운영 중인 공간 디자인 스튜디오입니다. 불특정 다수를 대상으로 하는 상업 공간부터 여러 구성원이 함께 일하는 오피스까지 다양한 성격의 공간과 가구를 디자인하고 있습니다. 현재는 김예지, 한채현, 조윤제, 조영연, 박혜빈, 안재우, 김홍구가 함께하고 있습니다.

대표 작업으로 제네시스 HQ 오피스(2024), JKND 사옥(2024), 피자 슬라이스 서울(2025), HYBE 사옥(2021), 무신사 스튜디오 신당(2023), TUNE(2023), 맹그로브 동대문(2022), JTBC PLAY(2020), 아모레 성수(2019), thisisneverthat(2019~현재) 등이 있습니다. 또한 단독전 《City Cortania》(2017), 《The Last Resort》(2021), 《소품 불러오기》(2024)와 단체전 《New Wave Ⅱ: 디자인, 공공에 대한 생각》(2018), 《타이포잔치》(2021), 《젊은 모색 2023, 국립현대미술관 과천》(2023) 등 다수의 전시에 참여하며 활발히 활동하고 있습니다.

COM is a design studio based in Seoul that established in 2015 by Sejoong Kim who majored in spatial design, Joowon Han who majored in stage art.
COM designs spaces and furniture with various characteristics, from commercial spaces for unspecified individuals to offices where different members work together.

COM is pronounced “C-O-M”

Contact
ask.studioCOM@gmail.com

Instagram
@c_o_m.kr

Address
서울시 용산구 장문로 14 우성빌딩 3층

3F, 14, Jangmun-ro, Yongsan-gu,
Seoul, Republic of Korea

Current team
김세중 | Kim Sejoong
한주원 | Han Joowon
임지원 | Lim Jiwon
김예지 | Kim Yeji
한채현 | Han Chaehyun
조윤제 | Cho Yunjei
조영연 | Jo Youngyeon
박혜빈 | Park Hyevin
안재우 | Ahn Jaewoo
김홍구 | Kim Honggoo

Copyright
All the contents displayed on this website are COM’s intellectual and commercial property and should not be used, published or copied without studio’s permission.

Types
All
Accommodation
Bars
Cafe
Exhibition
Furnitures
Restaurant
Lounge
Office
Private residence
Scenography
Stores
Showrooms
    2025
    thisisneverthat® In-mall Store
    2024
    JKND HQ Office Seongsu
    thisisneverthat® In-mall Store
    2023
    TUNE
    thisisneverthat® In-mall Store
    2022
    MANGROVE Dongdaemun
    thisisneverthat® In-mall Store
    2021
    thisisneverthat® In-mall Store
    HYBE
    2020
    2019
    Amore Seongsu
    2018
    2017
    2016
    2015
    2014
    28
    JKND HQ Office | 4F, 2024
    Client
    : JKND
    Site
    : Seongsu-dong, Seoul
    Types
    : Office
    Topics
    : Clothing industry
    Period
    : Design 2022. 12 ~ 2024. 06 | Construction 2024. 01 ~ 07
    Work Scope
    : Interior, Furniture
    Area
    : 335㎡ (4F)
    JKND HQ 성수 사옥 | 오피스 & 미팅룸 4F

    디스이즈네버댓을 시작으로 다양한 패션 브랜드를 런칭, 전개 중인 패션 회사 JKND의 사옥 설계 프로젝트입니다. 건축 설계를 맡은 푸하하하프렌즈와 실내 공간과 가구 디자인을 맡은 COM 그리고 JKND는 수년간 긴밀하게 협의하여 섬세한 계획을 구축했습니다. (돌이켜보니 2019년 연희동 사옥 이후 5년만에 성수동으로 가게 되었네요)

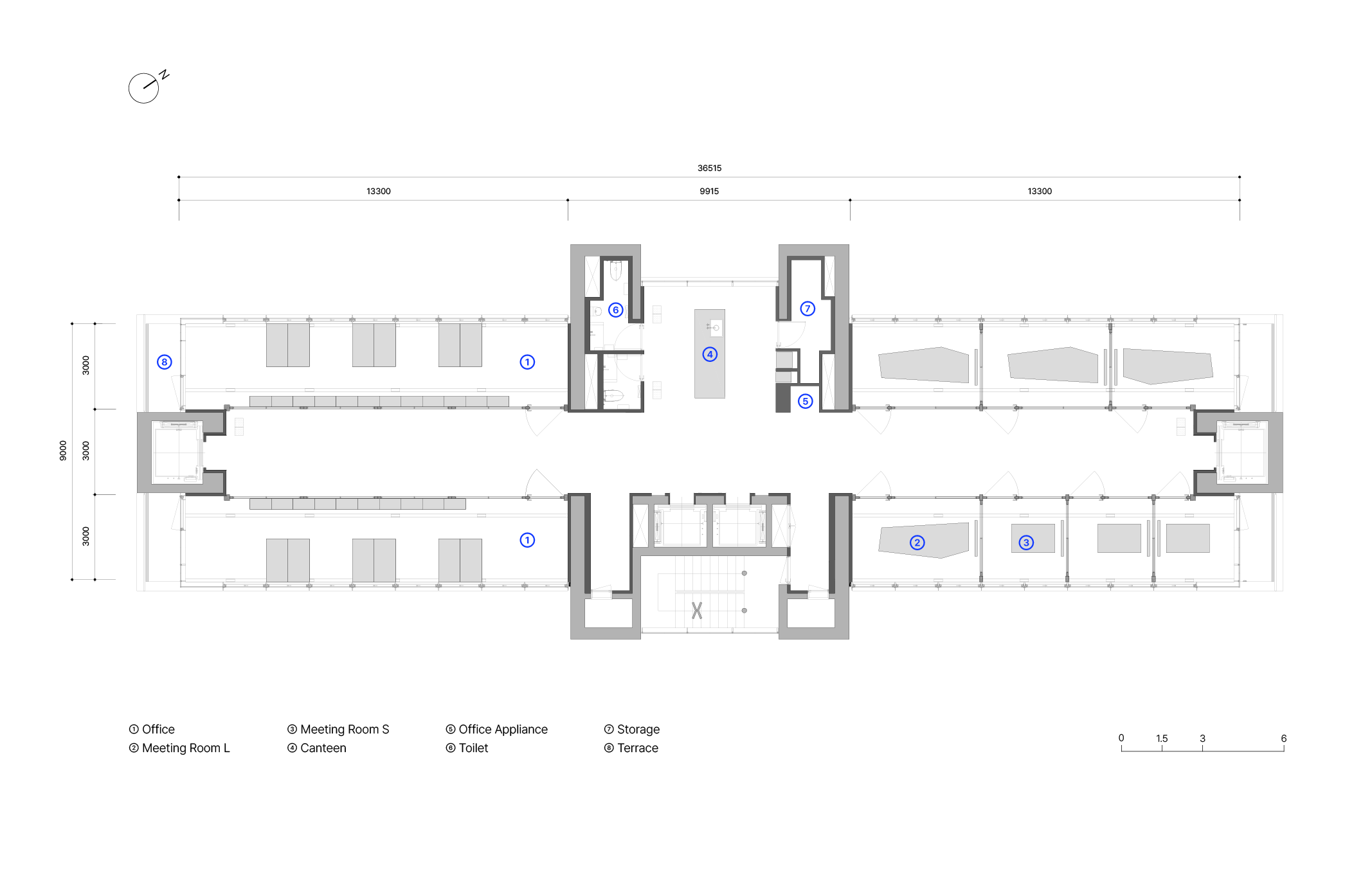
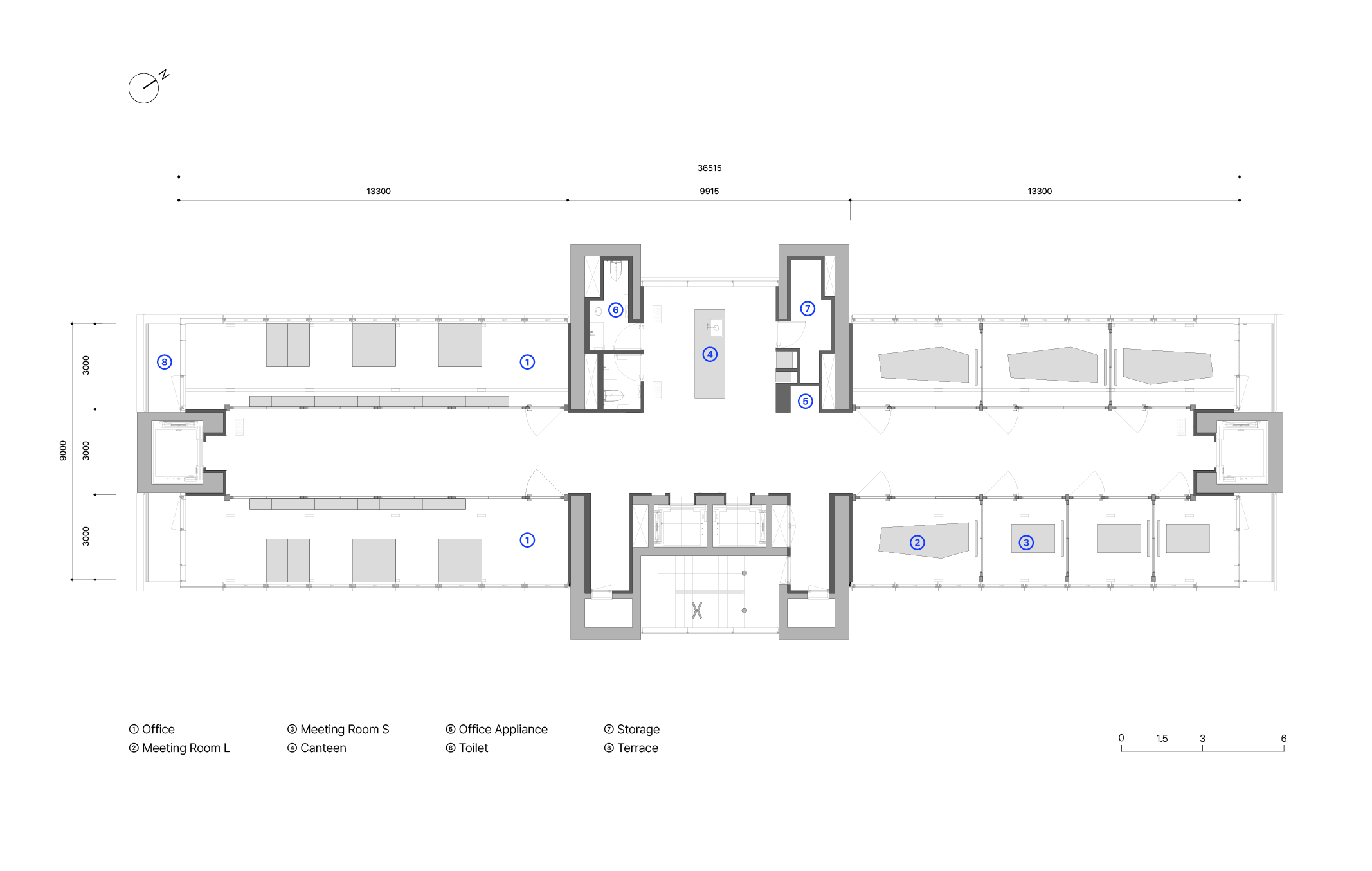
    사옥은 층별로 지하 2층 전시 및 팝업 공간, 지하 1층 F&B, 1층 로비, 2~3층 매장, 4~9층 오피스, 10층 포토 스튜디오와 라운지로 구성됩니다. 이 건물의 주요 특징 중 하나는 5~10층에 구현된 효율적인 층간 연결 시스템입니다. 건물 한가운데를 관통하며 양측 공간을 가르는 중앙 계단은 X자 형태로 구성되어 어느 방향에서든 수직 이동이 자유로운, 업무 공간의 핵심 동선입니다. 건물 양 끝단에 배치된 엘리베이터는 멀리 떨어진 층 간의 수직 동선을 추가 제공함으로써 업무 환경의 효율성을 극대화합니다. 한편, 이와 같은 중앙 계단과 엘리베이터 실을 이루는 구조는 건축물 전체를 지지하는 수직 구조로 설계되었으며, 이를 연결하는 육중한 넓이의 보가 건물 내부에 기둥이 없는 열린 업무 환경을 조성하고 있습니다. 이러한 건축의 주요한 특징들이 인테리어 설계의 중요한 출발점이 되었습니다.

    ↑ 층별 가이드

    4층에는 위아래 층을 잇는 X자 형태의 중앙 계단이 없습니다. 단절된 층 구획으로 외부인의 상층부 오피스 영역 출입을 통제하는 것입니다. 따라서 평면상 중앙부 공용 공간을 기준으로 좌측에는 보안이 필수적인 오피스가 배치됐고, 우측엔 7개의 크고 작은 미팅룸이 배치되었습니다.
    자연스럽게 보안이 필요한 부서와 미팅룸의 영역을 구분 짓는 벽체가 필요했기 때문에 양 끝 엘리베이터 사이의 넓은 복도와 나머지 영역을 구획하는 ‘파티션’을 계획했습니다. 파티션은 벽체와 창호 중간 역할을 하는 요소이며, 닫혀 있으면서 열려 있는 인상을 줍니다. 이를 통해 건축적 구조체를 가리지 않아 공간의 전체적인 양감을 살리며, 개별 실로 구획되지 않고 열린 공간으로 보이게 합니다.

    JKND는 새로운 옷을 출시하기까지 끊임없이 소통합니다. 부서 내부적으로도 부서 사이에서도 수많은 회의가 이뤄집니다. 개인 업무 공간에서 근무하는 시간만큼이나 4층 미팅룸에서 보내는 시간도 적지 않다고 판단, 기존 미팅실보다 더 나은 환경을 조성하고자 했습니다. 이를 위해 테이블의 형태에 특히 주목했습니다.
    미팅룸의 8인석 테이블은 비정형적인 모양입니다. 테이블 외곽의 다양한 각도는 좁게 느낄 수 있는 미팅룸에 가능한 한 여유로운 동선을 만들어줍니다. 또한, 발표자와 참석자의 자리를 구분하고, 앞사람에 의해 시각 자료가 가려지지 않도록 시야를 확보하는 역할을 합니다.

    ↑ 미팅 테이블 형태의 기능

    ↑ 4층 중앙부의 캔틴

    More

    (EN)
    Credit
    Photo : Texture on Texture
    Architecture Design : FHHH Friends
    CM : SAMWOO C.M.
    Architecture Construction : EAN R&C
    Interior Construction : GLROW Design
    CD : Choi Yunju
    Illumination Review : Huel Design

    JKND
    Director : Park Inwook
    PM : Choi Seho

    COM
    Kim Sejoong, Lim Jiwon
    Kim Yeaji, Han Joowon

    (KR)
    Credit
    Photo : 텍스쳐 온 텍스쳐
    건축 설계 : 푸하하하 프렌즈
    CM : 삼우 C.M.
    건축 시공 : 이안 R&C
    인테리어 시공 : 글로우 디자인
    CD : 최윤주
    조도 검토 : 휴엘 디자인

    JKND
    디렉터 : 박인욱
    PM : 최세호

    COM
    김세중, 임지원
    김예지, 한주원