COM

COM
COM(씨오엠)은 2015년 김세중과 한주원이 결성하고 2021년 임지원이 합류해 운영 중인 공간 디자인 스튜디오입니다. 불특정 다수를 대상으로 하는 상업 공간부터 여러 구성원이 함께 일하는 오피스까지 다양한 성격의 공간과 가구를 디자인하고 있습니다. 현재는 김예지, 한채현, 조윤제, 조영연, 박혜빈, 안재우, 김홍구가 함께하고 있습니다.

대표 작업으로 제네시스 HQ 오피스(2024), JKND 사옥(2024), 피자 슬라이스 서울(2025), HYBE 사옥(2021), 무신사 스튜디오 신당(2023), TUNE(2023), 맹그로브 동대문(2022), JTBC PLAY(2020), 아모레 성수(2019), thisisneverthat(2019~현재) 등이 있습니다. 또한 단독전 《City Cortania》(2017), 《The Last Resort》(2021), 《소품 불러오기》(2024)와 단체전 《New Wave Ⅱ: 디자인, 공공에 대한 생각》(2018), 《타이포잔치》(2021), 《젊은 모색 2023, 국립현대미술관 과천》(2023) 등 다수의 전시에 참여하며 활발히 활동하고 있습니다.

COM is a design studio based in Seoul that established in 2015 by Sejoong Kim who majored in spatial design, Joowon Han who majored in stage art.
COM designs spaces and furniture with various characteristics, from commercial spaces for unspecified individuals to offices where different members work together.

COM is pronounced “C-O-M”

Contact
ask.studioCOM@gmail.com

Instagram
@c_o_m.kr

Address
서울시 용산구 장문로 14 우성빌딩 3층

3F, 14, Jangmun-ro, Yongsan-gu,
Seoul, Republic of Korea

Current team
김세중 | Kim Sejoong
한주원 | Han Joowon
임지원 | Lim Jiwon
김예지 | Kim Yeji
한채현 | Han Chaehyun
조윤제 | Cho Yunjei
조영연 | Jo Youngyeon
박혜빈 | Park Hyevin
안재우 | Ahn Jaewoo
김홍구 | Kim Honggoo

Copyright
All the contents displayed on this website are COM’s intellectual and commercial property and should not be used, published or copied without studio’s permission.

Types
All
Accommodation
Bars
Cafe
Exhibition
Furnitures
Restaurant
Lounge
Office
Private residence
Scenography
Stores
Showrooms
    2025
    thisisneverthat® In-mall Store
    2024
    JKND HQ Office Seongsu
    thisisneverthat® In-mall Store
    2023
    TUNE
    thisisneverthat® In-mall Store
    2022
    MANGROVE Dongdaemun
    thisisneverthat® In-mall Store
    2021
    thisisneverthat® In-mall Store
    HYBE
    2020
    2019
    Amore Seongsu
    2018
    2017
    2016
    2015
    2014
    28
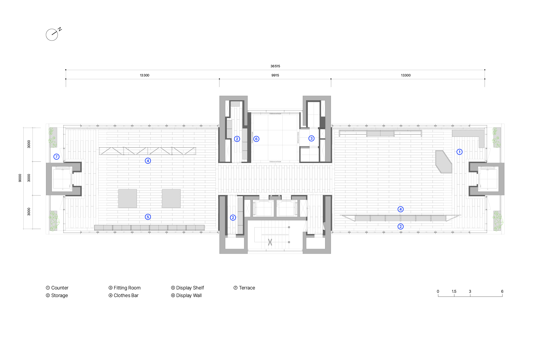
    thisisneverthat® Seongsu Flagship, 2024
    Client
    : JKND
    Site
    : Seongsu-dong, Seoul
    Types
    : Showrooms, Stores
    Topics
    : Flagship Store for thisisneverthat®
    Work Scope
    : Interior, Furniture
    Area
    : 310㎡
    Period
    : Design 2024. 06~08 | Construction 2024. 09~10
    디스이즈네버댓 성수 플래그쉽 스토어

    디스이즈네버댓 성수 플래그십 스토어는 디스이즈네버댓의 모회사인 JKND 신사옥 3층에 위치한 공간입니다. 지금까지 우리는 다양한 디스이즈네버댓 스토어를 설계해왔으며, 지난 프로젝트를 돌아보면 항상 오너의 다음 한마디에서 설계의 첫 단추를 끼웠던 것 같습니다.
    “디스이즈네버댓의 옷은 쉬운 옷입니다.”
    이번 프로젝트는 그 표현에 보다 더 집중했습니다.

    쉬운 공간이란 무엇일까요? 우리는 불필요한 자극이 없고, 편안하면서도 여유로운 환경을 떠올렸습니다. 넓고 개방적인 동선과 주의 깊게 조율된 가구 간의 적절한 간격은 이런 여유를 만드는 데 핵심적인 역할을 합니다. 또한, 사용자의 동선을 고려해 동행인을 위한 대기 공간을 마련하는 것도 중요하게 고려했습니다. 기다리는 사람을 위한 공간이 있어야 구경하는 사람도 맘 편히 둘러볼 수 있으니까요.

    디스이즈네버댓 성수의 중앙부

    1층 로비에서 중앙 엘리베이터를 타고 올라오면 처음으로 마주하는 중앙부는 탈의실과 벤치만 두어 누구나 앉아 쉴 수 있는 여유로운 공간으로 조성했습니다. 중앙부를 기준으로 양쪽 공간이 카운터, 매대, 행거 등을 배치한 스토어입니다. 이로써 중앙부의 탈의 공간이 비좁고 복잡한 스토어의 일부로 인식되는 것이 아닌, 건물과 스토어를 연결해주는 널찍한 로비로 활용되기를 바랐습니다. 중앙부의 가구와 조명은 건물 1층 로비의 요소들을 반복 사용해 한번 마주쳤던 인상을 연장시켜 익숙한 분위기로 인식될 수 있게 했습니다.

    집기의 디테일들

    집기와 집기, 벽체와 벽체 사이에 충분한 동선을 확보하여 공간이 쾌적하면서도 여유롭게 느껴지도록 구성했습니다. 각각의 집기는 그 형태와 크기가 단순하고 시원시원하지만, 꼭 필요한 기능적인 부분에 세장하고 섬세한 디테일을 적용해 완성도를 높였습니다. 또한, 창밖 풍경에 방해되지 않도록 창호 라인에 맞춰 집기의 높이를 낮추고, 금속 구조물은 필요한 만큼 얇고 간결하게 제작되었습니다. 대리석 벽은 일부 어수선한 배경을 가리는 동시에 매장내 재고를 보관하는 창고의 기능을 하고 있습니다.

    차양 계획

    이 건물은 모든 면이 창호로 되어 있고 벽체가 없는 것이 특징입니다. 그렇다 보니 해가 떠 있는 대부분의 시간에 해가 들어오는데, 특히 오후 시간대 서쪽에서 스토어 내부로 아주 깊이 스미는 강한 햇살은 쇼핑을 방해하는 요소일 수 있었습니다. 이에 대한 방안으로 설치한 목재 버티컬 블라인드는 필요한 만큼만 빛을 들이면서도 공간에 따뜻한 인상을 만들어 냅니다.

    More

    (EN)
    Credit
    Photo : Lee Juyeon
    Construction : GLROW Design
    Landscape : Anmadang The Lab

    COM
    Kim Sejoong, Lim Jiwon
    Kim Yeaji, Han Joowon

    (KR)
    Credit
    Photo : 이주연
    Construction : 글로우 디자인
    Landscape : 안마당 더 랩

    COM
    김세중, 임지원
    김예지, 한주원