COM

COM
COM(씨오엠)은 2015년 김세중과 한주원이 결성하고 2021년 임지원이 합류해 운영 중인 공간 디자인 스튜디오입니다. 불특정 다수를 대상으로 하는 상업 공간부터 여러 구성원이 함께 일하는 오피스까지 다양한 성격의 공간과 가구를 디자인하고 있습니다. 현재는 김예지, 한채현, 조윤제, 조영연, 박혜빈, 안재우, 김홍구가 함께하고 있습니다.

대표 작업으로 제네시스 HQ 오피스(2024), JKND 사옥(2024), 피자 슬라이스 서울(2025), HYBE 사옥(2021), 무신사 스튜디오 신당(2023), TUNE(2023), 맹그로브 동대문(2022), JTBC PLAY(2020), 아모레 성수(2019), thisisneverthat(2019~현재) 등이 있습니다. 또한 단독전 《City Cortania》(2017), 《The Last Resort》(2021), 《소품 불러오기》(2024)와 단체전 《New Wave Ⅱ: 디자인, 공공에 대한 생각》(2018), 《타이포잔치》(2021), 《젊은 모색 2023, 국립현대미술관 과천》(2023) 등 다수의 전시에 참여하며 활발히 활동하고 있습니다.

COM is a design studio based in Seoul that established in 2015 by Sejoong Kim who majored in spatial design, Joowon Han who majored in stage art.
COM designs spaces and furniture with various characteristics, from commercial spaces for unspecified individuals to offices where different members work together.

COM is pronounced “C-O-M”

Contact
ask.studioCOM@gmail.com

Instagram
@c_o_m.kr

Address
서울시 용산구 장문로 14 우성빌딩 3층

3F, 14, Jangmun-ro, Yongsan-gu,
Seoul, Republic of Korea

Current team
김세중 | Kim Sejoong
한주원 | Han Joowon
임지원 | Lim Jiwon
김예지 | Kim Yeji
한채현 | Han Chaehyun
조윤제 | Cho Yunjei
조영연 | Jo Youngyeon
박혜빈 | Park Hyevin
안재우 | Ahn Jaewoo
김홍구 | Kim Honggoo

Copyright
All the contents displayed on this website are COM’s intellectual and commercial property and should not be used, published or copied without studio’s permission.

Types
All
Accommodation
Bars
Cafe
Exhibition
Furnitures
Restaurant
Lounge
Office
Private residence
Scenography
Stores
Showrooms
    2025
    thisisneverthat® In-mall Store
    2024
    JKND HQ Office Seongsu
    thisisneverthat® In-mall Store
    2023
    TUNE
    thisisneverthat® In-mall Store
    2022
    MANGROVE Dongdaemun
    thisisneverthat® In-mall Store
    2021
    thisisneverthat® In-mall Store
    HYBE
    2020
    2019
    Amore Seongsu
    2018
    2017
    2016
    2015
    2014
    28
    niceghostclub Seongsu Flagship Store, 2024
    Client
    : niceghostclub (Mediquitos)
    Site
    : Seongsu-dong, Seoul
    Types
    : Showrooms, Stores
    Topics
    : Stained Glass and Noisy Wooden Floor
    Work Scope
    : Interior, Furniture
    Area
    : 108㎡
    Period
    : Design 2024. 07~08 | Construction 2024. 08~09
    나이스고스트클럽 성수 플래그쉽 스토어

    niceghostclub. 어딘가 비밀스러움이 느껴지는 이름 사이에서 “ghost”라는 단어가 가장 먼저 눈에 들어왔습니다. 어두운 밤 텅 빈 교실에서 삐걱거리는 소리와 함께 등장할 것 같은 존재가 떠올랐습니다. 형체는 불분명하지만, 그 존재감이 감각적으로 느껴지는 ‘고스트’라는 개념은 빛이나 소리 같은 요소와 닮아 있다고 생각했습니다. 시시각각 변모하는 빛줄기와 삐걱대는 마루 바닥 소리 - 나이스고스트클럽 플래그십 스토어는 이러한 우연적인 요소들로 수상함을 풍기는 공간이 되길 바랐습니다.

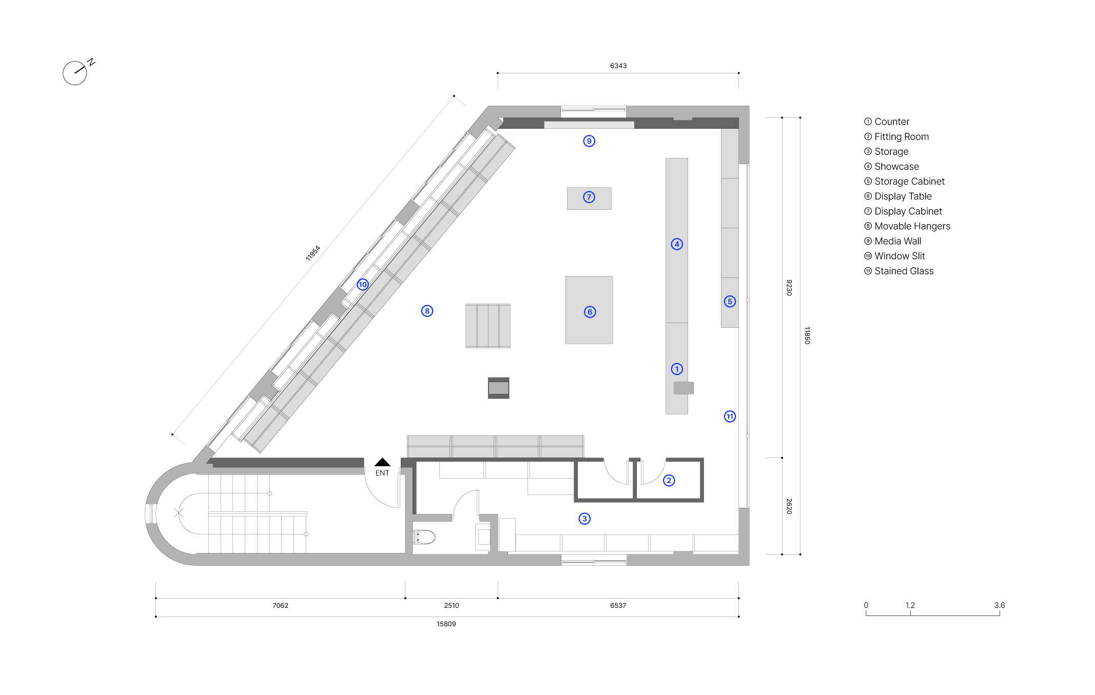
    플래그십 스토어 공간은 본래 유명 구두 장인의 낡은 공장이었습니다. 성수동 좁은 골목길에 자리 잡은 이 공간은 직각삼각형 모양으로, 모든 면에 창이 나 있지만 창밖 풍경은 그리 특별하지 않았습니다. 대신, 주변 건물에 반사되어 들어오는 빛과 들쑥날쑥한 실루엣이 만들어내는 그림자가 시간에 따라 역동적으로 변화하는 독특한 분위기를 선사했습니다. 이러한 특징을 살리고자 지루한 풍경은 거르고 빛의 움직임을 투과시키는 필터 역할을 하는 얇은 막을 모든 창에 더했습니다. 그리고 그 막 위에 나이스고스트클럽만의 서사를 새겨 브랜드의 세계관으로 둘러싸인 공간을 만들었습니다.

    두 개의 막

    첫 번째 막은 중세 성당을 연상시키는 ‘스테인드글라스’입니다. 나이스고스트클럽 세계관 속 신화적 이야기를 담은 시각적 요소로, 하얗게 칠해진 매장 공간에 스테인드글라스를 통과한 빛이 스며들어 시간에 따라 색과 농도를 달리해 분위기를 다채롭게 만듭니다.

    도로변에 위치한 창문에는 두 번째 막인 ‘덧창’을 더했습니다. 나이스고스트클럽을 상징하는 별 모양 로고를 패턴화하여 덧창의 슬릿에 새겨 넣었습니다. 낮에는 이 슬릿 사이를 통과한 빛이 매장 바닥에 별 모양을 새기고, 밤에는 매장 내부의 조명 빛이 슬릿을 통해 바깥으로 새어 나가 빛나는 파사드를 연출합니다. 법적 제약과 건물의 노후 문제로 새로운 외피를 추가할 수는 없었지만, 기존 외피를 그대로 활용하여 브랜드 정체성을 파사드에 드러내고자 했습니다.

    ↑ Illustration by niceghostclub
    ↑ Stained Glass Design by Jinyoung Glass
    삐걱대는 마루 바닥

    빛이 브랜드의 서사를 직관적으로 표현하는 장치라면, 소리는 고스트라는 개념을 상징적으로 등장시키는 매개체입니다. 으스스한 적막 속에서 삐걱거리는 마루 바닥 소리는 문학 작품이나 영화 속에서 초현실적인 존재의 등장을 암시하곤 하는데요. 플래그십에서 이런 청각적인 장치는 방문객과 공감대를 형성하는 연결 고리 역할을 합니다. 변화하는 빛의 주체는 자연이지만, 고재로 짜인 마루 바닥이 뒤틀리는 소리는 방문객 각자의 몸무게에 따라 만들어집니다. 평소와 같은 발걸음이지만 그 소리가 평소처럼 가볍지 않을 때, 보이지 않는 무언가의 존재감이 강조되고 갑작스레 낯선 공기로 전환됩니다.

    사소하지만 공예적인 맥락

    나이스고스트클럽은 다양한 작가들과의 협업을 통해 일러스트가 돋보이는 의류를 선보입니다. 의류 디자인과 조화를 이루고자 집기들은 최대한 단순한 형태로 만들었고, 덧창에 넣은 별 모양 로고 패턴을 집기에도 동일하게 적용해 전체적인 통일감을 주었습니다. 옷에 들어간 일러스트의 연장선상에서 스테인드글라스 또한 매장 전체의 맥락을 구성하는 공예적인 요소 중 하나였는데요. 이를 강조하기 위해 집기에도 나이스고스트클럽만의 주물 장식을 추가했습니다. 이러한 디테일을 통해 공간 전체를 하나의 이야기로 연결하고자 했습니다.

    ↑ 주물 제작 과정
    ↑ 스테인드글라스 제작 과정 | 사진 제공 © 진영글라스
    ↑ 스테인드글라스 뒷쪽 풍경
    More

    (EN)
    Credit

    Photo : Lee Juyeon
    Construction : GLROW Design
    Stained Glass : Jinyoung Glass

    COM
    Han Joowon
    Cho Yunjei

    (KR)
    Credit

    Photo : 이주연
    Construction : 글로우 디자인
    Stained Glass : 진영글라스

    COM
    한주원, 조윤제